15X50 East Facing 1BHK Ground Floor House Plan | 750 Sqft Plot Floor Plan
Description
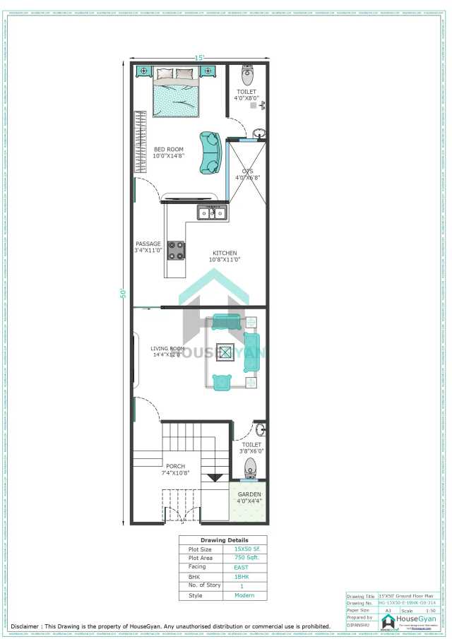
This 15X50 east-facing 1BHK ground floor house plan is designed to maximize space efficiently within a 750 sqft plot. This house plan consists of 1 bedrooms, 1 Hall and 1 bathrooms within 750 square feet. If you're looking for a 15X50 house plan, you've come to the right place. Here at HouseGyan architects, we specialize in designing and creating floor plans for all types of 15X50 plot size houses. Whether you're looking for a traditional multi stories home or a more modern ranch-style home, we can help you create the perfect 15*50 floor plan for your needs.
Whether you're looking to build your dream home with a Custom House Drawing or want a compact, modern layout, this 750 sqft floor plan is an excellent choice for a east-facing plot. To get an rough idea of the expenses, use our House Construction Price Calculator to estimate your costs effectively.
Ratings & Reviews
House Gyan all services
Loading...15X50 House Plan | 750 Sqft Plot House Plan | 1BHK East Facing Ground Floor Plan
This 15X50 East Facing 1BHK Ground Floor House Plan is smartly designed for a 750 sq ft plot, making the best use of limited width while ensuring comfort, ventilation, and functionality. It is an ideal choice for small families, couples, or rental purposes.
15X50 House Plan – East Facing Ground Floor Layout
The East-facing orientation is planned as per vastu principles, allowing positive energy, natural light, and fresh air throughout the house. The ground floor layout includes:
1 Bedroom designed for privacy and peaceful rest
2 Toilets (attached + common) for daily convenience
Living Area serving as the main sitting and relaxation space
Kitchen with an efficient cooking and storage layout
OTS (Open to Sky) area for natural ventilation and daylight
Internal Staircase for future floor expansion
Porch Area for two-wheeler or small car parking
Small Garden Area adding greenery and freshness
This house plan layout is well-balanced, practical, and perfect for compact urban plots.
Why Choose a 15X50 House Plan?
A 15X50 plot size is highly suitable for narrow plots in city areas:
Ideal for compact 1BHK ground floor homes
Smart use of space with OTS and open areas
Suitable for future vertical expansion
Low construction and maintenance cost
Perfect for rental income or first-time homebuyers
More 15X50 House Plan Options
At HouseGyan, you can explore multiple 15X50 house plan designs, including:
1BHK & 2BHK layouts
Vastu-compliant house plans
Modern 2D floor plans & 3D elevations
Fully customized architectural solutions
Find More House Plans at HouseGyan
HouseGyan provides:
Professional 2D & 3D house drawings
Quick delivery in PDF & CAD formats
Vastu-based planning for positive living
Expert consultation for house construction
Get Your Custom 15X50 House Plan Today!
Want to modify room sizes or add extra storage?
HouseGyan offers custom house plan services tailored to your plot size, lifestyle, and budget.
Final Thoughts
This 15X50 East Facing 1BHK Ground Floor House Plan on a 750 sq ft plot is a perfect solution for compact yet comfortable living. With two toilets, OTS, porch, stair, and a small garden, it offers everything needed for modern urban homes.
Explore more 15X50 house plans and smart 1BHK designs only at HouseGyan!

The information contained on Housegyan.com is provided for general informational purposes only. While we strive to ensure that the content on our website is accurate and current, we make no warranties or representations of any kind, express or implied, about the completeness, accuracy, reliability, suitability, or availability with respect to the website or the information, products, services, or related graphics contained on the website for any purpose. Housegyan.com will not be liable for any loss or damage including, without limitation, indirect or consequential loss or damage, or any loss or damage whatsoever arising from loss of data or profits arising out of, or in connection with, the use of this website.
Third party logos and marks are registered trademarks of their respective owners. All rights reserved.













