Table Of Content ☰
- Why Choose a House Between 1000 – 1500 Sqft?
-
Top 10 Best House Designs Between 1000 – 1500 Sqft 2025
- 1. 30X50 East Facing 2BHK Ground Floor House Plan – 1500 Sqft
- 2. 20X50 East Facing 2BHK Ground Floor House Plan – 1000 Sqft
- 3. 20X50 West Facing 3BHK First Floor House Plan – 1000 Sqft
- 4. 22X50 West Facing 3BHK First Floor House Plan – 1100 Sqft
- 5. 25X60 East Facing 2BHK Ground Floor House Plan – 1500 Sqft
- 6. 24X50 East Facing 4BHK First Floor House Plan – 1200 Sqft
- 7. 30X50 North Facing 3BHK Ground Floor House Plan – 1500 Sqft
- 8. 25X50 East Facing 4BHK First Floor House Plan – 1250 Sqft
- 9. 20X50 North Facing 3BHK Ground Floor House Plan – 1000 Sqft
- 10. 21X55 East Facing 2BHK Ground Floor House Plan – 1155 Sqft
- Key Design Tips for Indian Homes Between 1000 – 1500 Sqft
- FAQs on 1000 – 1500 Sqft House Designs
- Conclusion – Choosing the Perfect Home Design
Finding the perfect house design in India is no easy task. With limited land availability and rising construction costs, most families are now opting for compact yet stylish homes ranging between 1000 – 1500 sqft. These homes are not only affordable but also easy to maintain, making them ideal for nuclear families, working professionals, and retirees.
Why Choose a House Between 1000 – 1500 Sqft?
Benefits of Small & Mid-Sized Homes
-
Affordable construction and maintenance.
-
Suitable for both urban and semi-urban plots.
-
Easier to customize interiors.
-
Perfect balance between space and budget.
Cost-Effectiveness and Space Utilization
With smart architectural planning, even a 1000 sqft plot can fit a spacious 2BHK or 3BHK layout. On the other hand, a 1500 sqft home offers enough flexibility for 4BHK and duplex designs, making it ideal for growing families.
Top 10 Best House Designs Between 1000 – 1500 Sqft 2025
Let’s explore the most popular 1000 - 1500 sqft house plans in India:
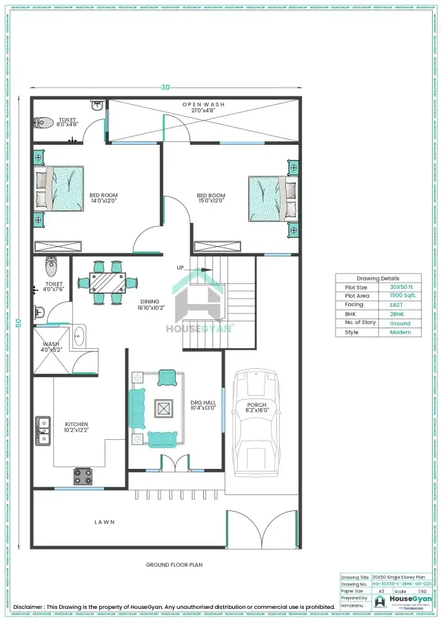
1. 30X50 East Facing 2BHK Ground Floor House Plan – 1500 Sqft

This design is perfect for families who prefer Vastu-compliant east-facing homes.
-
Layout: Spacious living room, two bedrooms, modular kitchen.
-
Best For: Small to medium families.
-
Highlight: Ample parking space and garden area.
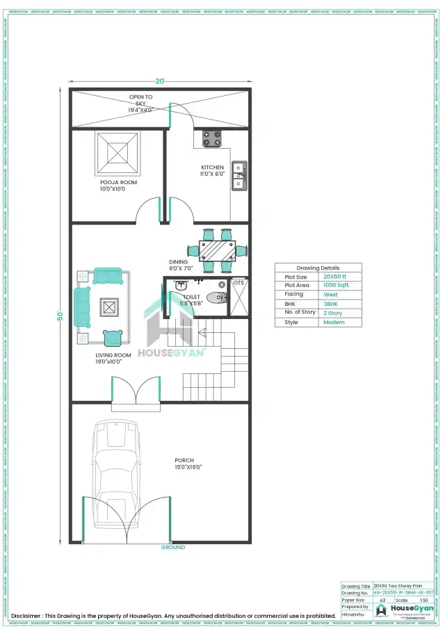
2. 20X50 East Facing 2BHK Ground Floor House Plan – 1000 Sqft

A compact yet modern home design.
-
Layout: 2BHK with a cozy living area and attached bathrooms.
-
Best For: Newly married couples or retirees.
-
Highlight: Efficient space utilization.
3. 20X50 West Facing 3BHK First Floor House Plan – 1000 Sqft

This first-floor plan offers a stylish 3BHK setup within a compact area.
-
Layout: Three bedrooms, one living room, modular kitchen.
-
Best For: Families with children.
-
Highlight: West-facing design with good ventilation.
4. 22X50 West Facing 3BHK First Floor House Plan – 1100 Sqft

-
Layout: Spacious master bedroom, two secondary rooms, and balcony.
-
Best For: Families seeking additional space.
-
Highlight: Smart first-floor construction.
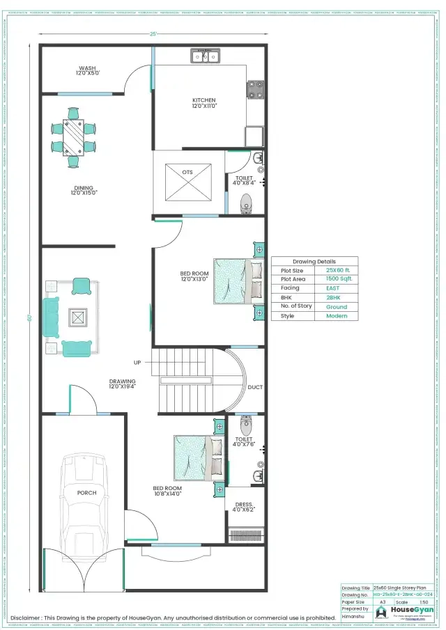
5. 25X60 East Facing 2BHK Ground Floor House Plan – 1500 Sqft

-
Layout: Two large bedrooms with a big hall and open kitchen.
-
Best For: Joint families.
-
Highlight: Extended frontage for garden/parking.
6. 24X50 East Facing 4BHK First Floor House Plan – 1200 Sqft

-
Layout: Four bedrooms with attached bathrooms.
-
Best For: Larger families.
-
Highlight: Maximum space efficiency.
7. 30X50 North Facing 3BHK Ground Floor House Plan – 1500 Sqft

-
Layout: Three spacious bedrooms, pooja room, dining hall.
-
Best For: Families following Vastu.
-
Highlight: North-facing orientation.
8. 25X50 East Facing 4BHK First Floor House Plan – 1250 Sqft

-
Layout: Four bedrooms plus balcony space.
-
Best For: Multi-generational families.
-
Highlight: Balanced floor plan with luxury appeal.
9. 20X50 North Facing 3BHK Ground Floor House Plan – 1000 Sqft

-
Layout: Compact 3BHK with open kitchen.
-
Best For: Families of 4-5 members.
-
Highlight: North-facing plot advantage.
10. 21X55 East Facing 2BHK Ground Floor House Plan – 1155 Sqft

-
Layout: 2BHK with spacious living and dining areas.
-
Best For: Small families.
-
Highlight: Affordable construction cost.
Key Design Tips for Indian Homes Between 1000 – 1500 Sqft
Space-Saving Interior Layouts
Use modular furniture, wall-mounted storage, and open floor plans.
Vastu Shastra Considerations
Choose east or north-facing plots for positivity and better sunlight.
Energy-Efficient and Sustainable Designs
Install solar panels, rainwater harvesting, and natural ventilation.
|
HouseGyan Offering | ||
FAQs on 1000 – 1500 Sqft House Designs
Q1. What is the average cost of building a 1000 – 1500 sqft house in India?
A: Construction costs vary between ₹1,500 – ₹2,500 per sqft depending on location and materials.
Q2. Which is better – East facing or West facing house?
A: Both are good, but east-facing is preferred in Vastu for better energy flow.
Q3. Can a 1000 sqft home fit a 3BHK?
A: Yes, with smart planning, a compact 3BHK layout is possible.
Q4. Is 1500 sqft enough for a duplex house?
A: Absolutely! A 1500 sqft plot can accommodate a 2-floor duplex.
Q5. What are the best house plans for joint families?
A: 4BHK layouts like the 24X50 or 25X50 plans work best.
Q6. Do smaller houses have resale value?
A: Yes, compact homes are always in demand in urban India.
Conclusion – Choosing the Perfect Home Design
When it comes to house designs between 1000 – 1500 sqft in India, there’s no shortage of choices. Whether you want a compact 2BHK for a small family or a spacious 4BHK for joint living, these plans strike the perfect balance between affordability, space, and style.
By choosing the right layout and following Vastu + modern design trends, you can create a home that’s both functional and future-ready.














