Table Of Content ☰
- 1. What Is a 20×50 House Plan?
- 2. Key Benefits of a 20×50 House Plan
- 3. Ideal Plot Utilization for 20×50 Layout
- 4. Room-Wise Layout Suggestions
- 5. 20 * 50 1BHK House Plan – Best for Small Families
- 6. 20 * 50 2BHK House Plan – Balanced Living
- 7. 20 * 50 3 BHK House Plan – Spacious and Modern
-
8. Popular 20×50 House Plan Examples with Floor Drawings
- 8.1 20×50 East Facing 2BHK Ground Floor House Plan (1000 Sq Ft)
- 8.2 20×50 West Facing 3BHK First Floor House Plan (1000 Sq Ft)
- 8.3 20×50 South Facing 3BHK Ground Floor House Plan (1000 Sq Ft)
- 8.4 20×50 North Facing 3BHK Ground Floor House Plan (1000 Sq Ft)
- 8.5 20×50 North Facing 2BHK Ground Floor House Plan (1000 Sq Ft)
- 9. 20 50 House Plan for Rental Income
- 10. Vastu Tips for 20 Feet by 50 Feet House Plan
- 11. Common Design Mistakes to Avoid
- 12. Conclusion
- 13. Why HouseGyan ?
- 14. Frequently Asked Questions (FAQs)
What Is a 20×50 House Plan?
A house plan for 20 feet by 50 feet plot refers to a residential layout designed on a plot measuring 1,000 square feet. This rectangular plot is ideal for urban housing because it allows efficient zoning of living, sleeping, and service areas. The 20 50 house plan is suitable for independent houses, duplex homes, and rental buildings.
Key Benefits of a 20×50 House Plan
A 20 * 50 best house plan offers several advantages:
-
Efficient land usage with minimal wastage
-
Easy construction and budget control
-
Suitable for narrow-front plots
-
Flexible design for 1BHK, 2BHK, or 3BHK
-
Excellent ventilation and natural lighting
-
Ideal for Vastu-compliant layouts
Because of its proportions, the 20 feet by 50 feet house plan works well in both north-facing and east-facing plots.
Ideal Plot Utilization for 20×50 Layout
Ground Floor Planning
The ground floor usually includes:
-
Living room at the front
-
Kitchen and dining in the middle
-
One bedroom with attached toilet
-
Staircase positioned along a side wall
First Floor Planning
The first floor can be used for:
-
Additional bedrooms
-
Family lounge
-
Balcony or terrace garden
-
Rental unit or home office
This vertical planning makes the 20 by 50 feet house plan highly adaptable.
Room-Wise Layout Suggestions
Living and Dining Area
Place the living room near the entrance to enhance openness. A combined living-dining layout saves space and improves flow.
Kitchen and Utility
The kitchen should ideally be in the southeast corner. Add a compact utility area for washing and storage.
Bedrooms and Bathrooms
Bedrooms work best along the sides or rear. Attached bathrooms help maintain privacy and comfort.
20 * 50 1BHK House Plan – Best for Small Families
A 20 * 50 1BHK house plan is ideal for couples, elderly homeowners, or rental purposes. It includes:
-
One bedroom
-
Living room
-
Kitchen
-
Bathroom
-
Small pooja or storage area
This layout is cost-effective and easy to maintain.
20 * 50 2BHK House Plan – Balanced Living
The 20 * 50 2BHK house plan is the most popular choice. It offers:
-
Two comfortable bedrooms
-
One or two bathrooms
-
Spacious living-dining area
-
Modular kitchen
It suits nuclear families seeking comfort without overspending.
20 * 50 3 BHK House Plan – Spacious and Modern
A 20 * 50 3 bhk house plan is perfect for larger families. It often includes:
-
One bedroom on the ground floor
-
Two bedrooms on the first floor
-
Balconies and open spaces
-
Study or home office
This design delivers maximum usability within limited land.
Popular 20×50 House Plan Examples with Floor Drawings
1. 20×50 East Facing 2BHK Ground Floor House Plan (1000 Sq Ft)
This practical and spacious plan includes:
-
2 well-ventilated bedrooms for comfortable living.
-
Spacious living and dining area near the entrance.
-
Functional kitchen with easy dining access.
-
Two bathrooms for family and guest convenience.
-
Front parking space for a small car or two-wheeler.
Why it’s great: Smart space utilization with an east-facing layout that ensures ample natural light, good ventilation, and Vastu-friendly planning—making it ideal for small to medium-sized families.
2. 20×50 West Facing 3BHK First Floor House Plan (1000 Sq Ft)

This well-planned first floor layout includes:
-
3 comfortable bedrooms suitable for a growing family.
-
Spacious living area designed for privacy on the upper floor.
-
Well-positioned kitchen with dining space for daily convenience.
-
Multiple bathrooms to support a 3BHK configuration.
-
Balcony areas that improve ventilation and natural airflow.
Why it’s great: A smart west-facing first floor design that maximizes space, privacy, and ventilation—ideal for families planning multi-storey homes or rental-friendly layouts.
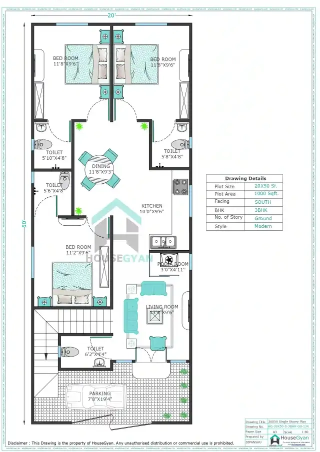
3. 20×50 South Facing 3BHK Ground Floor House Plan (1000 Sq Ft)

This spacious and well-organized ground floor plan includes:
-
3 well-sized bedrooms suitable for medium to large families.
-
Comfortable living and dining area with good circulation space.
-
Functional kitchen planned for easy daily use.
-
Multiple bathrooms for family and guest convenience.
-
Proper ventilation through windows and open spaces.
Why it’s great: A thoughtfully designed south-facing 3BHK layout that balances space, comfort, and functionality—ideal for families looking for a complete ground floor living solution on a 1000 sq ft plot.
4. 20×50 North Facing 3BHK Ground Floor House Plan (1000 Sq Ft)

This well-planned ground floor layout includes:
-
3 spacious and well-ventilated bedrooms for family comfort.
-
Large living and dining area placed near the entrance.
-
Practical kitchen layout with smooth workflow.
-
Multiple bathrooms to support a full 3BHK setup.
-
Good natural light and ventilation throughout the house.
Why it’s great: A north-facing 3BHK ground floor design that promotes balanced lighting, comfortable living, and efficient space usage—ideal for families seeking a Vastu-friendly home on a 1000 sq ft plot.
5. 20×50 North Facing 2BHK Ground Floor House Plan (1000 Sq Ft)

This compact and efficiently planned ground floor layout includes:
-
2 well-sized bedrooms with proper ventilation.
-
Spacious living and dining area near the entrance.
-
Functional kitchen designed for daily cooking needs.
-
Common bathroom placed for easy access.
-
Good natural light flow throughout the house.
Why it’s great: A practical north-facing 2BHK design that offers comfortable living, balanced lighting, and smart space utilization—ideal for small families or first-time homeowners on a 1000 sq ft plot.
20 50 House Plan for Rental Income
Many homeowners divide floors into independent units. A 20 50 house plan with two 1BHK units can generate steady rental income while retaining privacy.
Vastu Tips for 20 Feet by 50 Feet House Plan
Entrance and Living Room Vastu
-
Main door in the north or east
-
Living room in northeast or north
Kitchen and Bedroom Vastu
-
Kitchen in southeast
-
Master bedroom in southwest
Staircase and Toilet Vastu
-
Staircase in south or west
-
Toilets in northwest or southeast
Common Design Mistakes to Avoid
-
Ignoring ventilation
-
Poor staircase placement
-
Overcrowded rooms
-
No future expansion planning
-
Skipping Vastu compliance
Avoiding these ensures your 20 * 50 best house plan remains functional for decades.
Conclusion
A well-designed 20×50 House Plan offers the perfect balance of affordability, comfort, and modern living. Whether you choose a 20 * 50 1BHK house plan, a 20 * 50 2BHK house plan, or a 20 * 50 3 bhk house plan, thoughtful layout planning and Vastu compliance can transform your home into a peaceful and efficient living space. With the right design approach, a house plan for 20 feet by 50 feet plot can meet today’s needs and tomorrow’s dreams.
Why HouseGyan ?
HouseGyan is a reliable platform for homeowners looking for practical, well-designed, and Vastu-friendly house plans. It offers a wide range of ready-made floor plans for different plot sizes, including popular dimensions like 20×50. With detailed drawings, expert planning, and easy customization options, HouseGyan helps users make informed decisions and turn their home ideas into reality with confidence.
|
HouseGyan Offering | ||
Frequently Asked Questions (FAQs)
1. Is a 20×50 house plan suitable for duplex homes?
Yes, it works well for duplex and multi-floor homes.
2. Can I build a 3BHK on a 20×50 plot?
Yes, with proper vertical planning.
3. Is Vastu possible in a narrow plot?
Absolutely, with smart room positioning.
4. What is the construction cost for a 20×50 house?
Costs vary based on materials and location.
5. Can a 20×50 house include parking?
Yes, front parking or stilt parking is possible.
6. Which is the best facing for a 20×50 plot?
North and east-facing plots are considered ideal.














