Table Of Content ☰
- Understanding 1800 Sq Ft House Plan Size
- Popular 1800 Sq Ft House Plan Designs
- X40 East Facing 3BHK Ground Floor House Plan | 1800 Sqft Plot Floor Plan
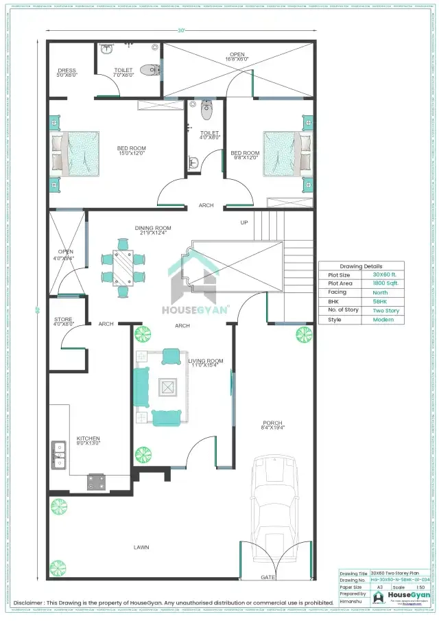
- X60 North Facing 5BHK First Floor House Plan | 1800 Sqft Plot Floor Plan
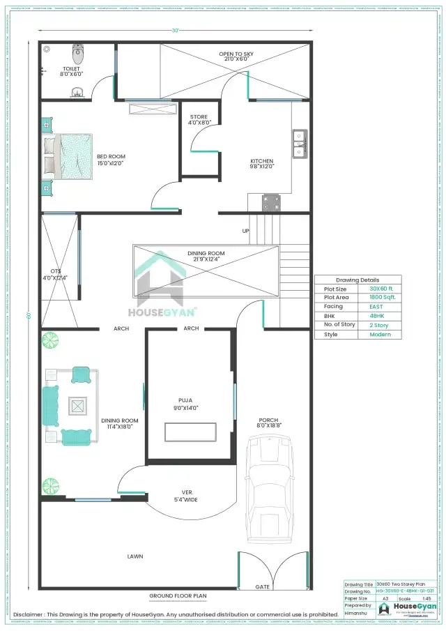
- X60 East Facing 4BHK First Floor House Plan | 1800 Sqft Plot Floor Plan
- X60 East Facing 1BHK Ground Floor House Plan | 1800 Sqft Plot Floor Plan
- Sq Ft House Plan Layout Ideas
- Vastu Tips for 1800 Sq Ft House Plan
- Sq Ft House Construction Cost in India (2026)
- Design Ideas for 1800 Sq Ft House
- Sq Ft House Plan with Car Parking
- Best Facing Directions for 1800 Sq Ft House (As per Vastu)
- Conclusion
- FAQs
If you’re planning to build your dream home, an 1800 sq ft house plan offers the perfect balance between spacious living and manageable costs. Whether you want a 2BHK, 3BHK, or duplex house, 1800 sq ft is ideal for medium-sized Indian families.
In this house plan complete guide, we’ll cover plot size, layout ideas, Vastu tips, and construction costs in India (2026) — everything you need before starting your home project.
Understanding 1800 Sq Ft House Plan Size
An 1800 sq ft house plan means the total built-up area of your house is around 1800 square feet. Depending on the plot shape and facing, this can be divided into different layouts:
|
Plot Size (ft) |
Area (Approx.) |
Ideal For |
|
30 x 60 ft |
1800 sq ft |
3BHK Ground Floor or Duplex |
|
25 x 72 ft |
1800 sq ft |
2BHK + Parking |
|
40 x 45 ft |
1800 sq ft |
3BHK with Courtyard |
|
20 x 90 ft |
1800 sq ft |
Duplex with Backyard |
|
35 x 52 ft |
1820 sq ft |
3BHK + Store Room |
Tip: Depending on your family size, you can design it as a single-floor plan or a Ground + 1 (G+1) duplex house.
Popular 1800 Sq Ft House Plan Designs
Here are some of the best 1800 sq ft house plan ideas for Indian families:
45X40 East Facing 3BHK Ground Floor House Plan | 1800 Sqft Plot Floor Plan

A balanced layout with three spacious bedrooms, a modular kitchen, and a large living area ideal for medium-sized families.
30X60 North Facing 5BHK First Floor House Plan | 1800 Sqft Plot Floor Plan

Perfect for joint families, featuring five bedrooms, open balconies, and excellent natural light as per Vastu.
30X60 East Facing 4BHK First Floor House Plan | 1800 Sqft Plot Floor Plan

A premium option with a large master bedroom, family lounge, and extended balcony for a modern lifestyle.
30X60 East Facing 1BHK Ground Floor House Plan | 1800 Sqft Plot Floor Plan

Best suited for rental units or small family homes, offering simplicity and comfort on a compact layout.
1800 Sq Ft House Plan Layout Ideas
Single Floor 3BHK Layout
-
Bedrooms: 3 spacious bedrooms with attached bathrooms
-
Living Room: Central area for guests
-
Kitchen: Modular kitchen with dining space
-
Extra Spaces: Utility area + pooja room + veranda
Perfect for families with elders or kids
Ground + 1 Duplex Plan
-
Ground Floor: Living room, kitchen, guest room, and dining area
-
First Floor: Master bedroom, children’s room, and balcony
Offers privacy and more open space
Modern Open Layout
-
Combines living, dining, and kitchen in one large open area
-
Includes sliding doors and large windows for natural light
Great for urban homes or villas
Vastu Tips for 1800 Sq Ft House Plan
To ensure peace, prosperity, and positivity in your home, follow these Vastu shastra guidelines:
|
House Area |
Best Direction (As per Vastu) |
|
Main Entrance |
East or North-East |
|
Kitchen |
South-East (Agni corner) |
|
Master Bedroom |
South-West |
|
Living Room |
North-East or North-West |
|
Pooja Room |
North-East |
|
Staircase (if duplex) |
South or West side |
Pro Tip: Keep the center of your home (Brahmasthan) open and clutter-free for good energy flow.
1800 Sq Ft House Construction Cost in India (2026)
The total cost of construction depends on materials, design, and location.
Here’s a rough cost estimate:
|
Type of Construction |
Cost per Sq Ft (Approx.) |
Total Cost (Approx.) |
|
Basic Quality |
₹1,300 – ₹1,600 |
₹23 – ₹29 Lakhs |
|
Standard Quality |
₹1,700 – ₹2,100 |
₹30 – ₹38 Lakhs |
|
Premium Quality |
₹2,200 – ₹2,800 |
₹39 – ₹50 Lakhs |
Pro Tip: Use the House Construction Cost Calculator on HouseGyan to estimate your total home-building cost accurately.
Design Ideas for 1800 Sq Ft House
-
Modern Elevation: Go for glass, concrete, and wooden textures for a sleek look.
-
Smart Interiors: Use modular furniture and neutral tones to make rooms look spacious.
-
Balcony Design: Add a front or side balcony for natural ventilation.
-
Eco-friendly Design: Use solar panels, rainwater harvesting, and natural lighting.
1800 Sq Ft House Plan with Car Parking
If your plot is 30x60 ft, you can easily fit a car parking space in the front.
Layout suggestion:
-
1 Car Parking
-
1 Living Room
-
3 Bedrooms
-
1 Kitchen + Dining
-
3 Bathrooms
-
1 Balcony or Terrace
|
HouseGyan Offering | ||
Best Facing Directions for 1800 Sq Ft House (As per Vastu)
|
Facing Direction |
Ideal For |
Benefits |
|
East Facing |
Most popular in India |
Brings positivity and sunlight |
|
North Facing |
Business professionals |
Promotes wealth and growth |
|
South Facing |
Large open plots |
Suitable with proper Vastu corrections |
|
West Facing |
Evening sunlight homes |
Energy-efficient and modern look |
Conclusion
An 1800 sq ft house plan is perfect for families seeking balance between comfort, aesthetics, and affordability. With the right Vastu design, layout planning, and construction estimate, you can build your dream home easily.
Before you start, make sure to check your House Construction Cost Calculator and explore modern elevation designs on HouseGyan to get the best ideas for your home.
FAQs
1. How many rooms can fit in an 1800 sq ft house plan?
You can easily fit a 3BHK or 4BHK layout depending on design and plot orientation.
2. What is the construction cost of an 1800 sq ft house in India?
The average cost ranges from ₹25 to ₹45 lakhs, depending on material and design.
3. Which direction is best for an 1800 sq ft house as per Vastu?
East or North-facing plots are most auspicious according to Vastu Shastra.
4. Can I build a duplex in 1800 sq ft?
Yes, 1800 sq ft is ideal for a Ground + 1 duplex home design.
5. How do I calculate the exact cost for my house plan?
Use the House Construction Cost Calculator to estimate based on area, material, and location.














