Table Of Content ☰
- x60 East Facing 3BHK Ground Floor House Plan (1500 Sqft)
- x40 North Facing 2BHK Ground Floor House Plan (1600 Sqft)
- x45 East Facing 2BHK Ground Floor House Plan (1575 Sqft)
- x46 East Facing 3BHK Ground Floor House Plan (1656 Sqft)
- x50 East Facing 3BHK Ground Floor House Plan (1500 Sqft)
- x60 East Facing 1BHK Ground Floor House Plan (1800 Sqft)
- x50 West Facing 3BHK Ground Floor House Plan (2000 Sqft)
- x40 West Facing 2BHK Ground Floor House Plan (2000 Sqft)
- x60 East Facing 2BHK Ground Floor House Plan (1980 Sqft)
- x45 East Facing 3BHK Ground Floor House Plan (1620 Sqft)
- Estimated Construction Cost for ₹15–25 Lakh Homes
- Tips to Keep Your Home Under ₹25 Lakh Budget
- Which Plan Should You Choose?
- Conclusion
Buying a house is a dream for every Indian family. But with rising construction costs, many people struggle to find a budget-friendly house design that fits both space and style. That’s why today I am sharing Top 10 house designs between ₹15–25 Lakh with 2BHK & 3BHK ground-floor layouts, perfect for Indian families looking for a low-cost modern home.
These affordable house plans are ideal for plots 1500–2000 sqft and include East / West / North facing options as per Vastu preferences.
25x60 East Facing 3BHK Ground Floor House Plan (1500 Sqft)

Best for: Small family wanting 3 bedrooms
Features: Good ventilation, hall+dining together, 2 common toilets, small utility
Why it’s budget-friendly: Straight rectangular structure → less material wastage
40x40 North Facing 2BHK Ground Floor House Plan (1600 Sqft)

Best for: Families who want spacious hall & rooms
Features: Square layout, natural light, attached + common washroom
Balanced structure reduces construction labour and RCC cost
35x45 East Facing 2BHK Ground Floor House Plan (1575 Sqft)

Best for: Couple/small family
Features: Separate dining, small puja area, utility zone
Smart partitioning saves finishing costs
36x46 East Facing 3BHK Ground Floor House Plan (1656 Sqft)

Best for: Families needing one guest room
Features: Bedrooms placed for privacy, compact kitchen
Simple floor slopes & plumbing lines → lower expenses
30x50 East Facing 3BHK Ground Floor House Plan (1500 Sqft)

Best for: Families wanting 3 rooms + verandah/front sit-out
Features: Linear layout = more usable carpet area
Rectangular plots cost less in foundation & exterior treatment
30x60 East Facing 1BHK Ground Floor House Plan (1800 Sqft)

Best for: Individual/couple
Features: Big living space, garden or parking, future extension options
Build only essential area now → stay inside ₹15 lakh budget
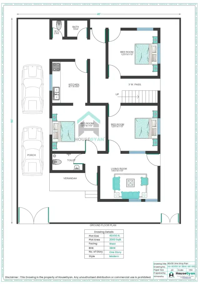
40x50 West Facing 3BHK Ground Floor House Plan (2000 Sqft)

Best for: Joint families
Features: Parking porch, formal living room
Efficient room sizes reduce structural material cost
50x40 West Facing 2BHK Ground Floor House Plan (2000 Sqft)

Best for: Families preferring bigger bedrooms
Features: Option for courtyard & green space
Open spaces reduce build-up = lower cost
33x60 East Facing 2BHK Ground Floor House Plan (1980 Sqft)

Best for: Future home expansion ideas
Features: Long layout, terrace space at back
Linear plumbing = cost control
36x45 East Facing 3BHK Ground Floor House Plan (1620 Sqft)

Best for: Middle-class Indian families
Features: Master with attached bath, front porch
No complicated elevation → saves money & time
Estimated Construction Cost for ₹15–25 Lakh Homes
Home Type | Plot Size | Estimated Cost | Construction Type |
1BHK | 1500–1800 sqft plot | ₹15–18 Lakh | Basic Finish |
2BHK | 1500–2000 sqft plot | ₹18–23 Lakh | Standard Finish |
3BHK | 1500–2000 sqft plot | ₹22–25 Lakh | Standard + Simple Elevation |
Factors that affect final cost:
City & labour rates
Material brand choice (tiles, doors, wiring)
Plumbing & electrical points
Roofing: Flat slab is cheapest
No fancy façade = Budget safe!
Want to quickly estimate your build cost? Use our freeHouse Construction Cost Calculator to get an instant estimate.
Tips to Keep Your Home Under ₹25 Lakh Budget
Build a ground floor only
Keep simple elevation & square design
Use local bricks/blocks
Standard size windows & doors
Paint + simple tiles instead of expensive cladding
Plan future expansion but don’t build immediately
This gives you a stylish home today + room to grow later.
HouseGyan Offering | ||
Which Plan Should You Choose?
If You Want… | Best Option |
More bedrooms | 3BHK 1500–1650 sqft plans |
Bigger hall & kitchen | 2BHK 1600–2000 sqft plans |
Lowest cost today | 1BHK 30x60 plan |
Perfect vastu start | East facing plans |
Good ventilation | North & East facing |
Conclusion
These 10 budget-friendly house plans between ₹15–25 Lakh prove that you can build your dream home without overspending. Just choose a simple layout, use smart material selection and plan for future expansion.
If you like any specific plan, I can provide:
Detailed floor plan (PDF)
3D front elevation design
City-wise construction cost estimate
Vastu corrections
Material & labour breakdown
FAQs
1. What is the estimated cost to build a budget-friendly house in India?
A budget-friendly house in India can typically be built between ₹15–₹25 lakh, depending on the plot size, material quality, labour rates, and design complexity. Simple layouts with standard finishes help keep the cost within budget.
2. Which house type fits best within a ₹15–₹25 lakh budget?
Within this budget, you can build a 1BHK, 2BHK, or compact 3BHK ground-floor home. A 1BHK may cost around ₹15–18 lakh, while a 2BHK or small 3BHK can fall between ₹18–25 lakh depending on construction choices.
3. What plot size is suitable for a ₹15–₹25 lakh house plan?
Most budget-friendly homes in this range are designed for plots between 1500–2000 sqft, which allows enough space for comfortable 2BHK or 3BHK layouts while maintaining affordable construction costs.
4. Which house facing is best according to Vastu?
According to Vastu principles, East-facing and North-facing house plans are often considered the most favorable because they allow better sunlight, ventilation, and positive energy flow.
5. How can I reduce house construction costs?
You can reduce costs by choosing simple rectangular layouts, standard door and window sizes, local building materials, and minimal elevation designs. Avoiding complex structures also lowers labour and material expenses.
6. Is it possible to build a 3BHK house under ₹25 lakh?
Yes, a compact 3BHK ground-floor house can be built within ₹22–₹25 lakh if the layout is simple and the finishing materials are standard rather than premium.
7. What is the best way to estimate home construction cost?
The easiest way is to use a house construction cost calculator, which estimates the cost based on plot size, city, materials, and construction type. This helps you plan your budget before starting construction.














